熱門物件

透天別墅
怡園獨棟景觀別墅附車位

案名:怡園獨棟景觀別墅附車位

售價:2,880 萬

地址: 新北市新店區北宜路二段

社區:-

型態: 透天 / 住家用

土地分區:保護區、丙種建築用地(山坡地保育區)

法定用途:

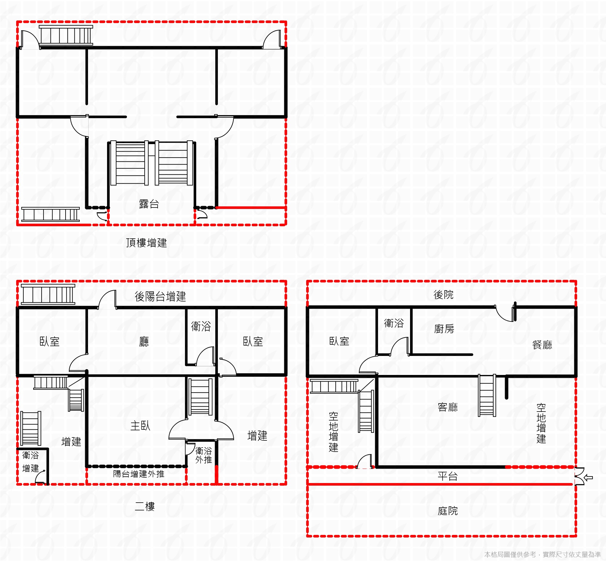
格局:5房/ 3廳/ 3衛

屋齡:47.4年

樓層:1~2 / 2F

建物總坪數: 約62.87坪

主建物:

附屬建物:

主建物+附屬建物:約62.87坪

公設坪數:-

土地坪數:約98.58坪 

車位:-

電梯:無

管理方式:

管理費:2,000元 / 月

特色推薦:

陽台、頂樓、空地空間好利用
格局正/屋況佳/視野景觀一級棒
此物件產品特殊/看屋說明

*本物件資料如有誤植,本店備有地政機關核發之謄本為查核,歡迎蒞臨本店詳閱!

立即詢問賞屋

孔瑞琴

李正雄

LINE 線上詢問

LINE 線上詢問
Image
Image
Image
Image
Image

地址 / Address

電話 / Phone

LINE / 線上詢問

Image

聯絡

東森房屋新店安康森林公園加盟店
大漢微風不動產經紀有限公司

營業員 李正雄 證號:(112)登字第447881號

營業員 孔瑞琴 證號:(98)登字第132756號

經紀人 陳振瀅 證號:(107)北市經證字第00325號

Image

保持聯絡

Facebook
facebook
LINE 好友
LINE 好友
電話聯絡
電話聯絡